Продается дом, 60 кв.м., /1 эт
| Стоимость | 8 000 000 |
|---|---|
| Комнат в доме | 3 |
| Категория земли | ИЖС |
| Тип комнат | раздельные |
| Кадастровый номер участка | 64:38:080384:585 |
| Право собственности | Посредник |
| Категория земли Avito | Индивидуальное жилищное строительство (ИЖС) |
| Способ связи avito | По телефону и в сообщениях |
| Материал стен (Авито дома) | Экспериментальные материалы |
| Тип отопления cian | Автономное газовое |
| Тип дома cian | Монолитный |
| Водоснабжение avito | Скважина |
| Канализация avito | Септик |
| Газ avito | В доме |
| Тип строения | Дом |
| Площадь, кв.м. | 60 |
| Площадь участка, сот | 7 |
| Этажность | 1 |
| Материал стен | Монолитный |
| Населенный пункт | Генеральское Село |
|---|---|
| Улица | улица Высоцкого |
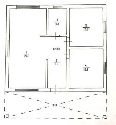
Продается жилой дом 60 кв.м. в поселке Генеральское (Энгельсский район). Дом построен в 2024 году, сделан качественный ремонт из современных материалов, кухонный гарнитур, готов к проживанию. Большая кухня-гостиная 25 кв.м., две спальни по 10.8 кв.м., прихожая 8,2 кв.м., сан.узел 4,3 кв.м. с душевой кабиной. Дом монолитный с наружным утеплением пенопласт под фасадной штукатуркой. Крыша металочерепица с утеплением минвата 250 мм. Электричество 15 кВт три фазы, Водоснабжение скважина (в доме), Канализация - септик.
село Генеральское - тихое место с развитой инфраструктурой для тех кто устал от городской суеты. Школа, детсад, магазины пятерочка, магнит. Два парка с детскими площадками. До обустроенного пляжа 5 минут неторопливым шагом. Для любителей охоты есть угодья. Любителям порыбачить два озера, пруд, река Волга. Охраняемая стоянка для катеров.
Документы готовы к продаже, один взрослый собственник.































