Продается 2-х комн. квартира, 57.07 кв.м., 10/10 эт
| Стоимость | 2 030 000 |
|---|---|
| Ремонт | Хороший |
| Балкон | Лоджия |
| Доля в квартире | Нет |
| Онлайн показ | могу провести |
| Статус Недвижимости Авито | Квартира |
| Комнат в квартире | 2 |
| Площадь, кв.м. | 57.07 |
| Жилая площадь | 30 |
| Площадь кухни, кв.м. | 9 |
| Этаж | 10 |
| Этажность | 10 |
| Материал стен | Панельный |
| Населенный пункт | Саратов |
|---|---|
| Район города | Заводской |
| Улица | улица Карьерная |
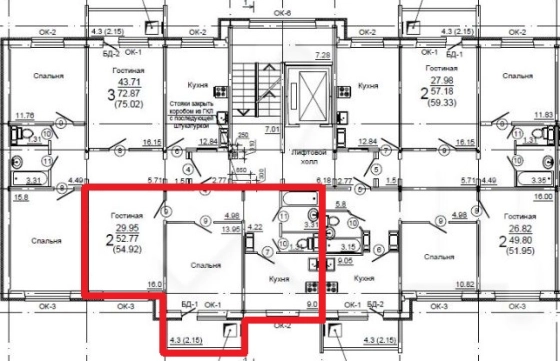
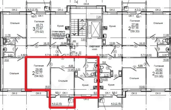
В продаже 2-к квартира на 10 этаже 10 этажного панельного дома, выше есть тех. этаж. Дом сдан в этом году! Отличная планировка, не угловая, не торцевая. Продается без отделки, есть возможность заказать ремонт от застройщика. Комнаты изолированные, сан. узел раздельный. Установлены плaстиковыe окна, счетчики, радиаторы отопления, входная металлическая дверь.
Дом 10 этажный, панельный, с техническим этажом и наружным утеплением. Площадь квартиры 57.07 кв.м. (включая лоджию 4,30) Кухня 9 кв.м. Комнаты по 16 кв.м. и 14 кв.м. В шаговой доступности школа, детский сад, сетевые магазины. Рядом остановка трамвая 9. Так же остановка общественного транспорта автобус 18Д и маршрутки. Недалеко находится СГТУ ( до Политеха всего 2 остановки на транспорте) Тихий район, активно заселяющиеся дома.
Звоните, записывайтесь на просмотр!







